開催日:12月6日(土)・7日(日) ※予約制 各日10:00~/14:00~
CONCEPT 家づくりについて
NEWS & EVENT 新着情報・イベント
-
イベント家づくり相談会『リフォーム・リノベーション編』12/6(土)・7(日) -
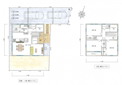
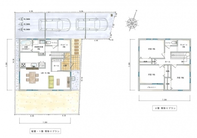
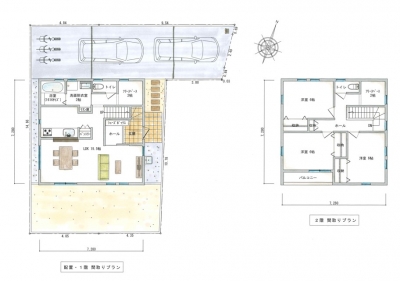
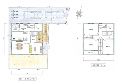
イベント建築途中の家づくり見学会開催!11月16日(日)開催日時:11月16日(日)
11:00 / 13:00 / 14:00 / 15:00 ※1時間ごとの予約制
伊丹市大野2丁目にて
-
イベント家づくり相談会『新築編』11/29(土)・30(日)開催日:11月29日(土)・30日(日)
※予約制 各日10:00~/14:00~
-
イベント家づくり相談会『リフォーム・リノベーション編』11/1(土)・2(日)開催日:11月1日(土)・2日(日) ※予約制 各日10:00~/14:00~
-
イベント家づくり相談会『新築編』10/25(土)・26(日)開催日:10月25日(土)・26日(日)
※予約制 各日10:00~/14:00~
LINEUP ラインナップ
WORKS 施工事例
-
無垢の木と自然素材でつくる家 (FF)やすらぎの和室と木のぬくもりを感じる家 -
無垢の木と自然素材でつくる家 (FF)陽だまりのあるリビングダイニングが心地よい住まい -
無垢の木と自然素材でつくる家自然素材に囲まれた毎日の暮らしを楽しむ家 -
無垢の木と自然素材でつくる家家族の集うリビングにロフトのある住まい -
casa carinaナチュラルテイストなタイルが映えるかわいい家 -
無垢の木と自然素材でつくる家 (FF)ペットと一緒に過ごすゆったりリビングのある住まい -
無垢の木と自然素材でつくる家ネコと暮らす瓦屋根の平屋建て -
無垢の木と自然素材でつくる家 (FF)家族の会話がはずむオープンキッチンのある家
VOICE お客様の声
-
TY様邸Q1.家づくりを始めようと思ったきっかけは何でしたか? 子どもが生まれ、そろそろ家が欲しいと思い、探していました。 いろいろメーカーなどを見てまわりました。その中で、雰囲気と素材に対する考え方に共感し、御社で建てようと決めました。 Q2.家づくりを始めてから完成までの間で楽しかったこと、悩んだことなどを教えてください。 土地探しが一番大変でした。これからずっと住むと考えると、決めるのに苦労しました。 楽しかったことは、自分がやりたいことが実現できることです。扉など決めるのに悩みましたが、悩んだ分、思い入れのある部分になっています。 Q3.今現在、お住まいの住み心地はいかがでしょうか? 前の賃貸では、結露などで悩んでいましたが、今ではほとんどなくなりました。 冬は、1階で昼から暖房をつけていたら、夜は2階もポカポカで、寝るときに寒いということがなくなりました。 脱衣所も少し広めなので、家事もはかどり、助かっています。 Q4.打ち合わせやモデルハウスについてなど、お気づきのことがありましたら教えてください。 スタッフの方には、いつも丁寧に対応して頂き感謝しています。 子どももすっかり、モデルハウスが大好きになりました。 Q5.これから家づくりを始める方にアドバイスがありましたらお願いいたします。 いろいろ家を見て、あったらいいな!を調べておくといいと思います。 -
NS様邸Q1.家づくりを始めようと思ったきっかけは何でしたか? 家族と共に長く過ごす家だからこそ快適で健康で住み心地の良い家とは何かな? と考えていく中で自然素材を使った家づくりに興味を持ちました。 ハウスメーカー、工務店と何軒か打ち合わせをする中で、私の理想とする家について本当に熱心に話を聞いて くださり、とにかくフィールフォレストの社長さんやスタッフの方達がとても話やすく、ここなら 信頼して私の思いをカタチにして家づくりを任せられると心から思ったからです。 Q2.家づくりを始めてから完成までの間で楽しかったこと、悩んだことなどを教えてください。 最初の打ち合わせから始まって家が完成するまでの8か月間、本当に何度も何度もスタッフの方との 打ち合わせはとにかく決めることが多く子供を一時預かりに預けて大変なこともあったように思いますが、 それでも色々情報を集めるのが楽しくてワクワクしていた事のほうが多かったです。 タタミのへりの色や柄はどうしよう!?ドアの取っ手の金具はどんなのか・・・とにかくこちらが決められる事 が多い分、大変でもありましたが、その度、何度も何度もスタッフさんが相談にのってくれて一つの事を 私が納得して決めるまで本当によく付き合ってくれてとても感謝しています。 Q3.今現在、お住まいの住み心地はいかがでしょうか? 住み始めて7年が経ちますが、お客さん、人が来ると毎回「木のいい香りがする・・・」と言ってくれます。 無垢の床は本当に心地よく夏はさらっとして床に子供と一緒に転がるととても気持ちがいいです。 温かみのぬくもりのあるお家で、とても快適に過ごせて子供も「このお家大好き」と小さい頃から言っていて 本当に満足しています。 Q4.スタッフの対応やモデルハウスについてなど、お気づきのことがありましたら教えてください。 自然素材をつかったものは洗剤がつかえなかったり、汚れた時にきれいにする方法などあまり詳しく説明 を受けなかったのでメリット、デメリット、汚れる前の防止の仕方など細かく知りたいです。 例えば洗面所に使用したタイル、すごく気に入っているのですが年々、目地の黄ばみが濃くなり ネット情報で色々試したけれど元の白い状態に戻らず困っています・・・。 -
OA様邸Q1.家づくりを始めようと思ったきっかけは何でしたか? 子供の成長にあわせて建てることに決めました。 子供たちが小さい頃から住むことで家に対する愛着が育まれる家になってほしいと思いました。 Q2.家づくりを始めてから完成までの間で楽しかったこと、悩んだことなどを教えてください。 自分たちの今の生活、将来の生活を想像しながら、どんな家にするのか考えたり、相談したりすることが楽しかったです。 建築途中の見学をさせてもらえて良かったです。セルロースファイバーの様子も見せてもらえて良かったです。 フィールフォレストの方々に色々相談にのってもらえたのでありがたかったです。 Q3.今現在、お住まいの住み心地はいかがでしょうか? 以前住んでいた建物で悩んでいた結露がなく、暖房を使用して就寝した朝も快適に目覚めることができています。 生活していると子供たちの遊ぶ声やピアノの音など、外に響いていないか心配しますが、窓を閉めると外に響くことがなく、気にしないで安心して遊ばせることができています。 Q4.打ち合わせやモデルハウスについてなど、お気づきのことがありましたら教えてください。 完成した後も相談にのっていただいたり修理のお願いに早急に対応してくださり、本当に感謝しています。 今後ともどうぞよろしくお願いいたします。 -
MK様邸Q1.家づくりを始めようと思ったきっかけは何でしたか? ご近所の素敵なお宅がフィールフォレストさんの建てられたものだと知り、HPを拝見すると、ハウスメーカーの24時間換気への疑問、過度の高気密住宅、ペットボトルのような家で良いのか、という言葉に強く心を動かされたのがきっかけです。 Q2.家づくりを始めてから完成までの間で楽しかったこと、悩んだことなどを教えてください。 出来上がりを想像しながら家づくりを進めていく過程を楽しめました。 悩んだことは、ふわっとしたイメージを伝えることが思う様に出来なかったことです。 Q3.今現在、お住まいの住み心地はいかがでしょうか? 気に入っているところ ・見上げると空が見える吹き抜けの開放感。雲や月が見られて、幸せ気分が味わえます。 ・夜、ライトアップされた門周り ・台風時の安心感 ・暖かい ・自然な程よい暑さ、寒さ、湿度を感じられる ・木の香り Q4.打ち合わせやモデルハウスについてなど、お気づきのことがありましたら教えてください。 モデルハウスでの打ち合わせは、出来上がる我が家をイメージできてワクワクしました。 スタッフの皆さんはいつも笑顔で接してくださり、家が出来上がるころには親戚のような親しみを感じました。 Q5.これから家づくりを始める方にアドバイスがありましたらお願いいたします。 納得できるまで、あきらめずに頑張ってください。 -
KT様邸Q1.当社を何でお知りになりましたか? ”注文住宅”兵庫で建てる を見て。モデルハウスの写真がステキだった事と、近所だったという事で連絡してみました。 Q2.当社を選んでいただいた理由、決め手は何ですか? モデルハウスの見学をしてセルロースファーバーの事や自然素材にこだわった家づくりをしている事を知り、いいなぁ・・・と思いました。 Q3.家を建てようと思い始めてからお引越までの期間は? 2年くらい・・・かな? Q4.家づくりで悩んだこと、楽しかったこと、苦労したことは何ですか? 新しい家で生活する事をシュミレーションして間取りを考えるのが楽しかったです。仕事の合間に打ち合わせがあり、とにかく忙しかったです。ゆっくり家の事を考える時間もあまりなかったかも・・・。でも外観も内装などもいつもぴったりな提案をしていただき大きく悩むこともあまりなかったように思います。今も満足しています。 Q5.今の家で気に入っているところ、満足しているところは? 仕事から帰ってくると夏は家の中が涼しく、冬は暖かくとても快適です。ウッドデッキでお弁当を食べたり、ビニールプールで遊んだり、 家で過ごすことが増えたように思います。冬は家の中で洗濯物を干すことが多くなりました(というか、毎日干しています)夜に干すと朝にはほとんど乾いてい ます。部屋干しのにおいもありません。スゴイです!! Q6.これから家を建てる方にアドバイスがあればお願いします 自然素材はメリットが大きいですがデリケートで、縮んだり、ヒビが入ったり・・・、と変化があります。でも住み心地は最高です!! -
TK様邸Q1.当社を何でお知りになりましたか? 完成見学会 Q2.当社を選んでいただいた理由、決め手は何ですか? 自然素材にこだわったり、防犯等の勉強会を開いてくれる。また社長さんとお話をして真面目な会社だと思ったからです。 Q3.家を建てようと思い始めてからお引越までの期間は? 1年半くらい。 Q4.家づくりで悩んだこと、楽しかったこと、苦労したことは何ですか? 見た目、使いやすさ、価格、どこで折り合いをつけるか悩みました。雑誌や本から気に入ったものを探しフィールフォレストさんにイメージを伝え、それが我が家のカタチになっていくことが楽しかったです。。 Q5.今の家で気に入っているところ、満足しているところは? 無垢の木の手触り、足触りが気持ちいいです。自然素材で家の中の空気感や雰囲気が心地良いです。吹き抜けダイニングは開放感があり、客人にも好評ですが冬の足元の寒さ対策が必要だなあと感じます。 Q6.これから家を建てる方にアドバイスがあればお願いします フィールフォレストさんは家づくりを一緒に考えてくださるので好みやイメージ等何でも伝えられたらいいと思います。 うちは住んでいる今でも相談にのっていただいています。 -
SM様邸Q1.当社を何でお知りになりましたか? 雑誌「兵庫の注文住宅」 Q2.当社を選んでいただいた理由、決め手は何ですか? 無垢の床、漆喰壁、雰囲気が私好みだったし、住んでいるところから近かったので。 Q3.家を建てようと思い始めてからお引越までの期間は? 2年くらい。 Q4.家づくりで悩んだこと、楽しかったこと、苦労したことは何ですか? コンセントの位置や窓の種類等、全部を決めなくてはいけなかったのは大変でしたが苦手分野やこだわりのないところは好みに合わせて提案していただきました。間取りを考えるところからパーツ選びまで全部が楽しかったです。 Q5.今の家で気に入っているところ、満足しているところは? 憧れだった無垢の床、漆喰の壁の家、自分の好きなものに囲まれて毎日を送れていることがとても幸せです。 梅雨時期でも床が全くべたつかず、サラッとしていることと、焼肉をした後でも匂いが残らないことに一番感動しました。 Q6.これから家を建てる方にアドバイスがあればお願いします 「フィールフォレスト」さんは最後までとことん相談にのってくれますし、住んで困ったことがあれば丁寧に応えてくれます。スタッフ皆さんがとても親切でお願いして良かったと心から思っています。 -
KT様邸Q1.当社を何でお知りになりましたか? 雑誌 Q2.当社を選んでいただいた理由、決め手は何ですか? モデルハウスや工事現場の見学会等の説明でスタッフの受け答えや、疑問点の回答に誠実さを感じたこと、フィールフォレストの家づくりの考え方に共感したこと。 Q3.家を建てようと思い始めてからお引越までの期間は? 3年くらい。 Q4.家づくりで悩んだこと、楽しかったこと、苦労したことは何ですか? 間取りを考えることは楽しかったですが、とても悩みました。 Q5.今の家で気に入っているところ、満足しているところは? 木と漆喰に囲まれて気持ちいいです。 以前住んていた賃貸住宅にはもどれません。 Q6.これから家を建てる方にアドバイスがあればお願いします 悩んで悩んで決めた事には納得がいきます。結果、満足した家づくりができます。家づくりは大変でしたが悩む私達にフィールフォレストさんは寄り添ってくださいました。悩みながら家づくりを楽しんでください。